Разновидности подвесных систем Armstrong. Особенности конструкций потолков Armstrong
- Разновидности подвесных систем Armstrong. Особенности конструкций потолков Armstrong
- Устройство потолка Армстронг. Плюсы и минусы потолков Армстронг
- Потолок армстронг: виды плит. Виды по типу материала
- Армстронг потолок. Элементы системы
- Армстронг теплопроводность. Armstrong
- Элементы подвесного потолка Армстронг. Что собой представляет потолок «Армстронг»
- Виды подвесных потолков и их особенности
Разновидности подвесных систем Armstrong. Особенности конструкций потолков Armstrong
В подвесных системах этого бренда используется не только плиточная система. Удлиненные плитки, похожие на реечные потолки появились в модельной линейке бренда. Но в основном это продукция предприятий других стран, работающих по лицензии. Никаких реечных поверхностей здесь нет. Основа конструкции, это система пружинных подвесок и алюминиевого профиля различной ширины. Лицевая сторона формируется из плиток с несколькими вариантами обработки поверхности и кромок.
Кромка Microlook с небольшим уступом на кромке для подвесок на траверсах шириной 1,5 см., Tegular, также с уступом для подвесок 2,4 см и Board с ровной кромкой под все виды потолков Армстронг. Самые распространенные габариты плит 600*600 и 60*1200 мм. Покрытие на плитках наносится с учетом области их применения. Основные виды плиток Армстронг следующие:
- Эконом класс с минеральными плитками белого или светло серого оттенка. Максимум, что может быть в оформлении лицевой поверхности, это точки и черточки. Подходят для офисных, промышленных, торговых помещений и для любых ремонтов с ограниченным бюджетом.
- Прима со специальной обработкой плит для помещений с высокой влажностью.
- Гигиенические с покрытием, не впитывающим пылевые и жировые частицы. В основном рекомендованы для лечебных учреждений, но подходит для любых помещений с повышенными требованиями по санитарным нормам.
- Акустические, название которых говорит о свойствах плит. Подходят для всех помещений, где нужно обеспечить звукопоглощающий эффект.
- Дизайнерские, самые привлекательные по оформлению, но достаточно дорогие по цене. Плитки с узорным орнаментом или геометрическим рисунков, более разнообразного цветового оформления для престижных офисных помещений. Торговых и выставочных центров, ресторанов.
Преимущества всех видов потолков и плиток Армстронг
Преимущества сборных подвесных потолков общие, независимо от изготовителя и некоторых отличительных особенностей у отдельных брендов:
- Отсутствие ограничений по установке сборных потолков в каком-либо помещении из-за санитарных или противопожарных норма;
- Быстрый монтаж без предварительной подготовки поверхности перекрытий, без риска повредить отделку стен и пола при установке потолочных конструкций;
- Беспрепятственный доступ к закрытому потолочному пространству без демонтажа всей конструкции;
- Возможность скрыть дефекты перекрытия без выравнивания и оштукатуривания, спрятать неприглядные вентиляционные короба или другие коммуникации, расположенные на перекрытиях или стенах по периметру помещения;
- Минимум ухода за панелями, который всегда затруднен в высоких помещениях;
- Возможность заменить только несколько плиток, поврежденных протечками воды или каким-либо механическим способом;
- Совместимость с различными схемами установки осветительных приборов, в том числе и специально сконструированных для установки в этих видах потолков Армстронг;
- Эстетичность и уникальный визуальный эффект при правильном подборе расцветки и видов плитки Армстронг к общему стилю оформления интерьера;
- Ценовая доступность самой конструкции потолочной системы и ее монтажа;
- И главное, долгий срок эксплуатации без постоянных ремонтов, покраски, оклейки потолка.
Устройство потолка Армстронг. Плюсы и минусы потолков Армстронг
Область применения Армстронга достаточно широка: его используют для отделки потолков в общественных местах и офисах, спортивных и культурных центрах, кафе и магазинах. Также удачно вписываются они в дизайн квартир.

Подвесной потолок Армстронг семейства Trulok
Достоинства потолков Армстронг:
- невысокая цена;
- хорошая звуко- и теплоизоляция;
- большой выбор материалов плит позволяет создать любой дизайн;
- не требуется предварительная подготовка потолка;
- простой монтаж, не требующий привлечения специалистов;
- возможность скрыть коммуникации и вентиляционные системы, обеспечить простой доступ для их осмотра и ремонта;
- простая установка встроенных светильников;
- возможен демонтаж и повторное использование (система потолка полностью разборная).

Потолок Армстронг с плитами из натуральной древесины
Недостатки такой конструкции заключаются в том, что она:
- понижает высоту потолка минимум на 20 см, поэтому для отделки квартир подходит не всегда;
- не подходит для помещений нестандартной формы;
- не защищает от протечек;
- боится влаги, органические плиты размокают и деформируются.
Благодаря огромному списку достоинств популярность потолков Армстронг не уменьшается, несмотря на новые технологии подвесных и натяжных потолков . Потолок Армстронг достаточно просто установить своими руками в квартире или офисе.

Потолок армстронг: виды плит. Виды по типу материала
Потолок Армстронг изготавливается из различных материалов. От выбора материала зависит будет ли обладать потолок теми или иными свойствами и характеристика. Несмотря на широкий выбор материала для плит, сами профили в потолочной системе бывают всего двух видов – алюминиевые и оцинкованные. Отметим пять видов материала:
Металлические
Отличительными чертами этих плит являются долговечность и надежность, а срок службы доходит до 50 лет. Чтобы полностью раскрыть потенциал плит, как правило, выбирают алюминий в качестве материала. Более бюджетные сделаны из оцинкованной или никелированной стали. Широкий ассортимент позволяют выбрать плиты, которые идеально впишутся в интерьер. Они могут быть зеркальными, матовыми, рифлеными, перфорированные, с полимерным покрытием и различных цветов.
Деревянные
Деревянные плиты Армстронг встречаются довольно редко в отделке потолочного покрытия. Все дело в том, что монтаж таких плит подразумевает использование деревянного каркаса, а не металлического. Плиты отличаются высокой ценой, а срок службы не такой долговечный, чем у металлических. Если заказчик хочет использовать деревянное покрытие в дизайне интерьера, плиты из того же пластика могут быть выполнены с древесным принтом. Такое решение сэкономит немало средств, а визуально они ничем не отличаются от настоящих деревянных плит.
Стеклянные
На сегодняшний день стеклянные плиты Армстронг обрели популярность в оформлении самых разных помещений. Они сделаны из стекла или оргстекла и бывают глянцевыми, зеркальными, прозрачными или матовыми. Использование подсветки изнутри позволяет сделать стеклянный потолок интересной декоративной изюминкой помещения, а мозаичные плиты придадут изысканности. Цена на такой потолок кусается, но эстетичный вид стоит потраченных средств.
Минеральное волокно
Минеральное волокно или каменная вата – основной материал изготовления данных плит. Они могут иметь в составе добавки, такие как: целлюлоза, гипс, крахмал или латекс. Добавки позволяют наделить плиты Армстронг дополнительными свойствами: звуко- теплоизоляция, влагостойкость. Минеральные плиты бывают мягкими и твердыми. Твердые более устойчивы к механическому воздействию.
Полистирол
Полистирол – самая распространенная разновидность пластика. Плиты Армстронг из полистирола имеют самую низкую цену среди своих аналогов. Они не отличаются высокой надежностью и токсичны при горении. Поскольку пластик обладает повышенной хрупкостью, по сравнению с другими видами материала, при монтаже необходимо особенно бережно обращаться с ним и не использовать его в помещениях, где температура превышает 70 градусов. Плиты из полистирола обладают хорошей водостойкостью и не меняют первоначальный цвет от времени. Плиты Армстронг из полистирола представлены на рынке в огромной палитре цветов и всевозможных фактур, к тому же можно сделать принт по своему усмотрению с использованием фотопечати.
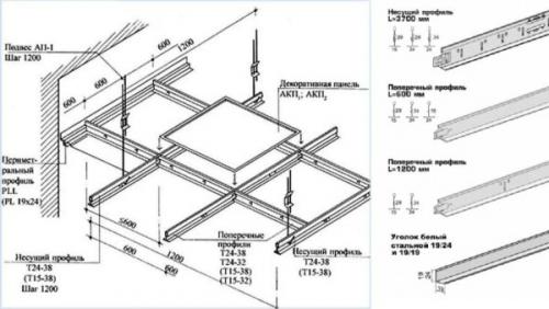
Армстронг потолок. Элементы системы
Потолочная система Армстронг состоит из набора элементов, которые легко между собой соединяются. Одно из ее достоинств — модульность, которая позволяет получить потолок любого размера и конфигурации. Проблема только с нелинейными формами — они не предусмотрены и штатных решений нет. Потому этот вид подвесного потолка используется только в квадратных и прямоугольных помещениях.

Это вариант потолка Армстронг со смешанным заполнением
Профили
Профили для потолка армстронг деалют из легкого алюминиевого сплава. На верхней части профилей нанесена перфорация, при помощи которой они крепятся к подвесам и стыкуются между собой. Нижняя часть профилей — та, которая видна из помещения — может иметь серебристый цвет, но чаще — белый. Также есть черные и золотистые, можно найти другие цвета, но их уже надо искать.

Чаще всего профиля окрашены в белый цвет
Длина профилей 600 мм, 1200 мм, 3600 мм. Несущие профили должны быть цельными (в случае необхоидимости могут сращиваться), потому длину подбираем такую, чтобы профиль был не короче помещения. Его нарезают на участки нужной длины.
Поперечные профили набираете частично длиной 120 см, частично — 60 см. Придется считать, сколько нужно каких для создания подвесной системы в вашем случае. Резать их не получится — по краям сделаны выступы, при помощи которых они стыкуются с несущими.

Монтажная схема потолка армстронг и ее компоненты
Несущие и поперечные профили бывают двух размеров — под разные типы плит: с полочкой на 15 мм и 24 мм. Разной бывает и «спинка» — под разную толщину плит (19 мм, 24 мм и 29 мм).
Есть еще пристенные профили. Они выполнены в виде уголка, монтируются по периметру помещения. На них опираются крайние плиты. Они тоже есть с полочками разной величины — 19 мм и 24 мм.
Плиты
Плиты для подвесных потолков Армстронг бывают двух размеров — 120 см * 60 см и 60 см * 60 см. Второй вариант более распространен, возможно потому, что квадраты лучше воспринимаются, чем прямоугольники. Есть еще они разной толщины — от 6 мм до 19 мм. Чем больше толщина, тем большую степень звукоизоляции имеет такой потолок, но во многом эта характеристика зависит от материала, из которого изготовлены плиты. А бывают они нескольких видов:
- Класс Эконом. Наиболее дешевые из всех, они имеют высокую гигроскопичность и плохо переносят повышенную влажность. Влагу они впитывают в лбом виде — в виде жидкости при подтоплении соседями сверху или из воздуха. Напитавшись влагой, становятся тяжелыми, начинают менять форму — прогибаться, что портит внешний вид. В общем, вариант дешевый, но хорошо себя чувствует в помещениях с климатконтролем и постоянной влажностью. В эту группу входят Oasis (Оазис) и ,Oasis+, Cortega (Гортега), Tatra (Татра), Bajkal (Байкал).

Плиты для потолка Армстронг касса Эконом
- Класс Прима (Prima). Это более дорогие панели, но они и по характеристикам намного лучше. Во-первых, они более прочные, имеют повышенную стойкость к влаге (85% против 65% у класса Эконом). Лучше они и в плане звукоизоляции и внешнего вида. К этой группе относятся коллекции Adria (Адриа), Casa (Каса), Cirrus (Циррус), Plain (Плэйн), Duna+ (Дюна плюс).

Плиты класса Прима
- Влагостойкие. Этот вид плит для подвесного потолка можно использовать во влажных помещениях или при повышенной влажности воздуха. Есть два вида Mylar (Мулар), Newtone Residence (Ньютон Резиденс).

Влагостойкие плиты для потолка Армстронг
- Акустические. Имеют улучшенные характеристики по звукопоглощению. Подходят для монтажа в торговых залах, офисах. Выпускаются в двух видах: Neeva (Ниива), Frequence (Фриквенс).
- Гигиенические. Эти плиты хорошо моются, предназначены для медучреждений и предприятий пищевой индустрии. Вид всего один — Bioguard (Биогуард).

Акустический и гигиенические — для специфического применения
- Дизайнерские. Эти плиты для потолков армстронг значительно отличаются по внешнему виду от всех остальных. Они используются при оформлении клубов, ресторанов, баров. Имеют презентабельный, а порой и роскошный вид, но стоят уже немало. Модификаций несколько: Visual (Вижуал), Cellio (Селлио), Graphis Linear (Графис Лайнер), Cirrus Image (Циррус Имидж).

Армстронг теплопроводность. Armstrong
Эти потолки не требуют дополнительной малярной отделки, на лицевую поверхность минераловолокнистых плит нанесено декоративное покрытие и после монтажа потолок полностью готов.
1. Подвесной потолок "ЭКОНОМ класса"
Армстронг - Теплопроводность
Армстронг - это высококачественный материал для потолка, который отличается своей теплопроводностью.
Армстронг
Армстронг - это марка минераловолокнистых плит, которые используются для обустройства потолков. Они имеют отличные теплоизоляционные свойства, что позволяет им сохранять тепло в помещении.
Преимущества Армстронга
- Теплопроводность
- Простота монтажа
- Длительный срок службы
- Экологическая безопасность
Подвесной потолок "ЭКОНОМ класса"
Эти потолки не требуют дополнительной малярной отделки, на лицевую поверхность минераловолокнистых плит нанесено декоративное покрытие и после монтажа потолок полностью готов.
Армстронг - это идеальный выбор для обустройства потолка в любом помещении, учитывая его высокие теплоизоляционные свойства и простоту монтажа.
| Подвесной потолок БАЙКАЛ Для плиты Bajkal характерна белая тисненая поверхность с ненаправленными червоточинами. Характеристики • Состав : минераловолокно. • Размеры плиты : 600х600х12. • Влагостойкость : 70%. • Светоотражение : 80%. • Звукопоглощение aw : 0,45 • Теплопроводность (Вт/м°C): 0.052-0.057 • Вес м.кв - 2,7 кг. |
![]() | Подвесной потолок ОАЗИС Для плиты Оазис характерна белая мелко-рельефная поверхность. Характеристики |
![]() | Подвесной потолок Dune Supreme |
![]() | Подвесной потолок Prima Plain Потолочные плиты «Plain» с гладкой белой поверхностью обеспечивают максимальное светоотражение в помещениях с направленным вверх светом и непрямым освещением без дополнительных энергозатрат, а также способствуют более высокому уровню комфорта. Характеристики Состав: минераловолокно • Размеры плиты : 600х600х15 • Влагостойкость : 95% • Коэффициент звукопоглощения : 0,10 • Звукоизоляция : 34 дБ • Светоотражение : 90% • Вес м.кв - 4,0 кг. • Теплопроводность : 0,052-0,057 Вт/м К |
![]() | Потолок Армстронг Prima Fine Fissured Потолочная плита «Fine» отличается белой c разнокалиберными точками поверхностью, отвечающей современным требованиям дизайна и обеспечивающей хороший акустический баланс. Характеристики Состав : минераловолокно • Размеры плиты: 600х600х15 • Влагостойкость : 95% • Коэффициент звукопоглощения : 0,55 • Звукоизоляция: 34 дБ • Светоотражение : 83% • Вес м.кв - 3,5 кг. • Теплопроводность : 0,052-0,057 Вт/м К |
![]() | Потолок Армстронг Prima Cirrus Потолочная плита «Cirrus»представляет белую рельефную поверхность, которая придает потолку красивый стиль и дизайн. Характеристики |
Элементы подвесного потолка Армстронг. Что собой представляет потолок «Армстронг»
Легковесная, быстро собирающаяся система, которая состоит из большого количества идентичных деталей, – вот что представляет собой подвесной потолок «Армстронг». Эта потолочная конструкция имеет небольшой вес, но прочность и надежность ее подтверждена многолетними испытаниями. Она незаменима, когда необходимо быстро и качественно отделать помещение.

У подвесного потолка «Армстронг» много достоинств, вот, например, некоторые из них:
- он легко и быстро собирается;
- все его детали – взаимозаменяемые;
- он эстетически привлекательный;
- все коммуникации, которые проходят сверху модулей, – легкодоступные;
- комбинирование плит, имеющих различные цвета и текстуры, дает возможность воплощать многочисленные дизайнерские решения в оформлении интерьера.

Имеется возможность встраивания светильников при устройстве подвесных потолков типа «Армстронг». Причем осветительные приборы выполняются точно по размеру потолочного модуля и могут устанавливаться именно в том месте помещения, где будут необходимы в каждом конкретном случае.
Потолочная система «Армстронг» – красивая и стильная. Правда, она тоже не лишена недостатков.
При устройстве потолка «Армстронг» такая конструкция, к сожалению, несколько съедает пространство.
Но в этом тоже есть плюс – элегантные модули укроют от постороннего взгляда неприглядные коммуникационные элементы, которые могут быть проложены над потолком. В этом заключено его большое преимущество.

Виды подвесных потолков и их особенности
Рынок современных материалов сегодня предлагает разнообразные типы подвесных потолков в зависимости от поставленной дизайнерами задачи:
- По форме – криволинейные.
Эти потолочные системы применяют при создании разноуровневых потолков.
Особым шиком является комбинация ровных и криволинейных потолков. Основной недостаток данной системы – высокая стоимость. Как правило, такие типы подвесных потолков делают под заказ.
- Плоскостные – это такие системы, которые не относятся к криволинейным:
- Модульные – готовые модули (кассеты, рейки, панели) образуют единую плоскость прямоугольной или квадратной формы.
В открытом доступе только до 11 июля
10 критических ошибок в ремонте, которые делают смету дороже на 100%
В открытом доступе только до 11 июля
10 критических ошибок в ремонте, которые делают смету дороже на 100%
Ремонт в кризис: 5 лайфхаков на чем можно сэкономить
20 важных шагов, которые облегчат процесс ремонта
10 советов, чтобы сохранить нервы, время и деньги
К ним относятся:
- Ячеистые – имеющиеся потолочные плоскости с тыльной стороны закрывают фоновой подложкой;
- Плиточные – на основе квадратных элементов;
- Кассетные – стандартная система, выполненная ячейками с разными размерами (60х60 см – для маленьких помещений; 60х120 см – для более просторных);
- Решетчатые – готовые решетчатые модули.
- Реечные – узкие рейки, которые располагаются крест-накрест.
- Сплошные – в народе их называют бескаркасными. Их отличительная особенность – создание исключительно ровной, гладкой поверхности, которую невооруженным глазом невозможно отличить от специально выровненного потолка.
- Декоративные – их конструктивная особенность заключается в открытой системе подвешенного каркаса.
Небольшой совет: при оформлении интерьера в стиле кантри или шале идеальным выбором станут декоративные открытые подвесные системы, каркас которых выполнен из дерева и отделан «под старину».
Итак, мы рассказали о том, какие бывают подвесные потолки. Однако, чтобы выбрать оптимальный вариант потолочного оформления в определенном помещении, этого мало: рассмотрим индивидуальные особенности потолков в зависимости от материала их изготовления.










