Комплекты потолков Армстронг с подвесной системой. Эксплуатационные характеристики комплектующих потолка Армстронг
Комплекты потолков Армстронг с подвесной системой. Эксплуатационные характеристики комплектующих потолка Армстронг
Конструктивно панельная облицовка представляет собой всего лишь плиты определенного состава и материала, уложенные на несущий каркас из оцинкованного профиля. Вся эта масса деталей и комплектующих для подвесного потолка Армстронг удерживается на бетонном перекрытии с помощью регулируемых подвесов.

Каркас собирается подобно конструктору из отдельных планок
Основное отличие в различных типах потолков Армстронг заключается в материале плит. Конкретный тип панели выбирается по условиям эксплуатации:
- Для помещений общественных заведений, магазинов и офисов, складов с постоянными перепадами температуры, высокой пылевой нагрузкой и специальными требованиями к пожарной безопасности используют минеральные плиты на основе прессованных гранул из минваты, латекса, гипса и целлюлозного волокна;
- В лечебных, санаторных и больничных учреждениях, в детских садах и школах для отделки потолка Армстронг используют панели с металлическими покрытиями, обладающими высокой устойчивостью к ультрафиолету и санитарной обработке;
- Для бассейнов, бань, прачечных, кухонных помещений применяют плиты из полимерных композиций, способные выдержать влажность до 98% и температуру до 120оС;
- В торговых и развлекательных учреждениях применяют потолки Армстронг с плитами ячеистого строения из минеральной ваты и волокна, хорошо блокирующие шумы и звуки и одновременно обладающие отличными противопожарными характеристиками.
За редким исключением, когда декоративные плиты выполняют из стекла, гипса или дерева, характеристики потолочных панелей Армстронг с комплектующими позволяют эксплуатировать их практически в любых помещениях.
Важно! Особо они приглянулись для производственных и технических объектов, в которых возможность многократно демонтировать потолочную отделку означает легкий доступ к коммуникациям, спрятанным в запотолочном пространстве.
Благодаря подвесной системе плиты легко снимаются и так же точно возвращаются на место, на несущий профиль-уголок, поэтому ремонт потолка Армстронг считается одним из наиболее простых и доступных.
Элементы подвесного потолка Армстронг. Металлический потолок Армстронг – разметка и монтаж

Потолок Армстронг (Armstrong) обрел свою популярность благодаря простой технологии монтажа и возможности уже при эксплуатируемом потолке легко добраться до коммуникаций, которые традиционно проводятся в запотолочном пространстве.
Особенно это свойство потолка ценится при создании офисных коммуникаций, которые нужно периодически модернизировать, изменять и просто обслуживать. Конструкция потолка — это плиты, закрепленные на металлическом каркасе.
Цельные плиты перемежаются со светильниками Армстронг. И те, и другие можно легко демонтировать и снять. Как же сделать потолок Армстронг своими руками?
Потолок Армстронг своими руками установить не сложно, что позволит сэкономить на монтажных работах. Перед началом монтажа нужно провести все коммуникации, установить вентиляционные каналы, сделать проводку для освещения. Вся проводка должна быть заключена в гофротрубы, защищающие кабели от короткого замыкания в случае потопа или пожара.
В первую очередь, при грамотной установке подвесного потолка Армстронг проводится разметка. Для этого нужно определить нижний угол помещения, отмерить от потолка вниз 10-15 см (в зависимости от высоты размещаемых светильников) и с помощью лазерного уровня вывести разметку на все углы и стены. Продублировать лазерную указку можно маркером или малярным скотчем.

По разметке нужно прикрепить стеновые уголки 19\24. Более длинная сторона должна прилегать к стене. Ножницами по металлу стыки профилей обрезаются под углом 45 градусов.
Отбивным шнуром с нанесенной краской нужно разметить диагонали и определить центр потолка. Далее на лазерный проектор выставляем размеры 120 см на 60 см и чертим сетку на потолке в соответствии с лазерной разметкой. Сразу на разметку нужно нанести места установки светильников.
Через каждые 120 см от стены к стене будет устанавливаться Т-образный подвес. Между двумя профилями должны уместиться 2 плиты Армстронг размерами 60 на 60.
Профили должны крепиться на подвесы к потолку.
Шаг подвесов зависит от тяжести профиля и расстояния между стенами: в среднем подвесы крепятся к потолку на расстоянии 90 см -150 см. Дополнительные подвесы желательно установить в местах, где будут установлены плиты со светильниками.
По большей части на 90% правильная и красивая установка подвесного потолка Армстронг зависит от тщательности и аккуратности сборки каркаса. Все работы по установке направляющих должны проверяться уровнем. Когда все подвесы будут прикреплены, устанавливаются направляющие профили.

Обычно профили уже имеют отверстия для навески на подвесы. Края профилей должны опираться на пристенный уголок, а центр регулируется высотой подвеса.
Между Т-образным профилем устанавливается соединительный профиль 120 см через промежутки в 120 см. Профиль вставляется в пазы на Т-образном профиле, располагающиеся каждые 30 см.
Все остальные пробелы заполняет соединительный профиль длинной 60см. Этот профиль соединяет середины 120-го профиля под углом в 90 градусов, и в результате получается решетка с ячейками в 60х60 см.

После благополучной сборки двух-трех профилей, каркас можно укрепить поперечинами. Направляющие профили и поперечины соединяются благодаря встроенным замкам на торцах и прорезям.
В первую очередь, устанавливаются светильники и подключаются к проводке.
Затем монтируются в направляющие сами плиты. Если размер ячейки каркаса меньше, чем плитка, излишек обрезается ножом.

С
Монтаж потолка Армстронг – краткий курс
Одним из самых быстровозводимых и одновременно дешёвых является кассетный подвесной потолок, который у нас принято называть ещё «Армстронгом».
Такие системы до недавнего времени было принято устанавливать в офисных помещениях и на промышленных комплексах, но с приходом на отечественный рынок западноевропейских отделочных материалов многое изменилось. Сегодня кассетный потолок – частый и желанный гость уже и в жилых квартирах. В рамках этой статьи хотелось бы поговорить об особенностях монтажа данной потолочной системы и подробно остановиться предварительной разметке потолка Армстронг
Поднимая вопрос, как производится разметка потолка Армстронг, полезно было бы узнать, что это за система, и каковы её особенности.

Армстронг – типичная подвесная ячеистая потолочная система, состоящая из металлического каркаса и облицовочных панелей, кассет. Именно от названия одной из самых дешёвых их разновидностей технология и получила на отечественном пространстве своё настоящее имя.
В целом всё качество данного потолка можно оценивать как раз по качеству его кассет.
Потолок Армстронг под ключ. Устройство потолков Армстронг
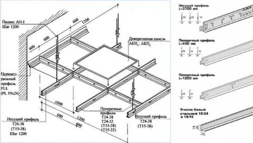
Конструктивно система представляет собой каркас подвесного потолка Армстронг, который собирается из металлического профиля в форме ячеек размером 60х60 см и плит стабильной геометрической формы.
Плиты могут быть сделаны из разных материалов, в частности:
- листы металла с перфорацией или без нее;
- зеркало;
- стекло;
- дерево;
- пластик;
- органические или минеральные природные материалы, бумага.
На заметку! Гипсокартонные плиты отличаются малой влагостойкостью, изготовленные из минеральной ваты осыпаются, могут нанести вред здоровью человека, если волокна попадут в дыхательные пути.

Стоит подробнее рассмотреть профильную систему подвесной конструкции.
Для обустройства каркаса нужны следующие элементы:
- Т-образный несущий профиль длиной 370 см. Монтируется параллельно короткой стене. Если длина стены более 370 см, ламель наращивают специальными креплениями, если длина стены меньше, профиль подрезают.
- Т-образный поперечный профиль длиной 60 см.
- Т-образный продольный профиль длиной 120 см. Фиксируется к несущему профилю, шаг крепежа 60 см.
- Плиты потолочные размером 60х60 см.
- Подвесы со штангами и крюками. Несущая штанга подвеса крепится к потолку анкерами или дюбелями, а крюк фиксируется на несущем профиле. Чтобы отрегулировать высоту размещения подвеса, нужно воспользоваться зажимами – процедура выравнивания позволяет добиться горизонтальной ровности всей подвесной системы.
Совет! Если плиты изготавливаются из тяжелых материалов – древесины, зеркала, то нужно пользоваться подвесами с усилением.
- По периметру комната обшивается стеновым профилем с сечением в виде металлического уголка. Длина стенового профиля 300 см, установка строго горизонтально.
Совет! Чтобы закрепить стеновой профиль строго по горизонтали, лучше воспользоваться лазерным уровнем.
Кроме деталей каркаса, плит в комплект входят анкера, дюбели, саморезы. Выпускаются каркасные детали из металла и металлопластика. Для повышения антикоррозийных качеств металла профиль покрывается полимерной порошковой краской. Ширина полки профилей может быть 15 мм и 24 мм. Детали с узкой полкой можно использовать для потолков без встроенных осветительных приборов, широкая полка требуется при формировании систем с тяжелыми зеркальными или стеклянными плитами, встраивании светильников.