Технология устройства подвесных потолков. Технология монтажа подвесного потолка
Технология устройства подвесных потолков. Технология монтажа подвесного потолка
Навесной потолок создается в нескольких последовательных этапах. Если работой занимается человек, не обладающий опытом работы в этой сфере, то он обязан предварительно тщательно изучить инструкцию, чтобы не допустить никаких ошибок.
Выполняем разметку
Первоначально наносится разметка на потолок и стены помещения, по которой далее будет формироваться каркас. Эта работа делится на этапы:
- сначала определяется уровень будущей потолочной конструкции, для чего определяется высота всей комнаты в каждом углу;
- от самого низкого угла помещения измеряется расстояние, на которое будет опускаться потолок;
- если планируется одновременно с созданием потолка монтировать встроенные осветительные приборы, то расстояние между основанием и подвесной конструкции не может быть меньше, чем 10 см, а в ином случае допускается сделать это расстояние меньше;
- по найденной точке в одном из углов проводится базовая линия, по которой далее буде фиксироваться стартовый профиль, причем для получения идеального результата этого процесса рекомендуется пользоваться лазерным уровнем;
- наносится разметка на потолок, определяющая будущие места фиксации подвесов, причем оптимальное расстояние между ними равно примерно 60 см.

Разметка потолка

При разметке стоит воспользоваться лазерным уровнем

Вариант разметки
После нанесения разметки начинается непосредственная работа по формированию потолочной конструкции. Чтобы в конечном подвесном потолке отсутствовали перекосы или иные проблемы, непременно в процессе нанесения разметки применяется профессиональное измерительное оборудование, поэтому обойтись стандартной рулеткой не получится.
Для нескольких уровней

Для одноуровневого потолка
Создаем каркас
Установку каркаса важно производить при выполнении последовательных действий:
- к стенам фиксируется стартовый профиль из металла, для чего важно ориентироваться на заранее нанесенные линии разметки;
- для крепления профилей применяются надежные анкерные болты, причем они вбиваются с существенным усилием в заранее просверленные перфоратором отверстия;
- устанавливаются подвесы, фиксирующиеся непосредственно к базовому потолку, представленного плитой перекрытия;
- они прикрепляются к потолку анкерными болтами;
- используются обычно пластинчатые подвесы, поэтому после их фиксации, они изгибаются таким образом, чтобы находились перпендикулярно потолку, а если применяются стержневые подвесы, то они подвешиваются к кольцам, закрепленным в перекрытии, после чего регулируется оптимальная длина каждого стержня;
- крепятся основные профили к подвесам, для чего используются короткие саморезы, предназначенные для работы с металлом;
- если работать приходится в большом помещении, то продольные элементы сформированного каркаса соединяются друг с другом поперечинами;
- выравниваются все части полученного каркаса по уровню;
- концы основных профилей заводятся в стартовый профиль, после чего они фиксируются с помощью саморезов.
Устройство потолков. Перекрытия балочного типа
По конструкции все перекрытия делятся на два вида: балочные и плитные. Каждое из них обладает определенными характеристиками.
Балочные потолочные перекрытия часто встречаются в частных домах
Поэтому, если нужно сделать самостоятельно потолочное основание, следует обратить внимание именно на данный тип конструкции. Основой такого перекрытия являются деревянные балки, которые опираются на несущие стены строений
Сечение их зависит от расстояния между ними, планируемой нагрузки и ширины пролета.
Прежде чем приступить к созданию перекрытия, необходимо выбрать древесину для балок. Они изготавливаются из материалов как хвойных, так и лиственных пород, но дерево должно быть тщательно просушено в течение минимум 3-4 месяцев. Перед укладкой балки обязательно проверяют на наличие гнили, трещин и прочих дефектов. В случае их обнаружения использовать материал нельзя.
Балки, уложенные на стены, выравнивают по плоскости. Для этого под их концы подкладывают части просмоленных досок различной толщины. Для выравнивания балок нельзя использовать необработанные деревянные клинья. Стыки между элементами на внутренних стенах усиливают хомутами или скобами. Вместо металлического хомута также используют накладки из досок толщиной более 40 миллиметров.
По требованиям пожарной безопасности, расстояние между балками и дымоходом должно быть не менее 40 сантиметров. При заделке концов в стены их пропитывают антисептиком, просмаливают и заворачивают в рубероид. Это позволяет защитить древесину от появления гнили.
Чтобы обеспечить жесткость перекрытия, закрепляют на несущей стене каждую вторую балку. Специалисты советуют с этой целью применять стальные анкеры, вмонтированные в кладку. Для создания на балках чернового потолка используют черепные бруски. Они прикрепляются к боковым сторонам основания, а к ним прибивают пластины наката, образующие покрытие.
Помимо деревянных балок, применяются и металлические изделия. Они имеют меньший размер и дают возможность сэкономить на общем объеме, который занимается перекрытием. Одновременно с этим металлические элементы обладают большей несущей способностью, которая превышает показатель для деревянных балок в несколько раз.
Но и у металлических балок имеются недостатки. К ним относятся подверженность коррозии и невозможность создания эффективной звукоизоляции.
Устройство подвесного потолка армстронг. Организация и технология выполнения работ
2.1. В соответствии со СНиП 3.01.01-85* "Организация строительного производства" до начала выполнения строительно-монтажных (в том числе подготовительных) работ на объекте Генподрядчик обязан получить в установленном порядке разрешение от Заказчика на выполнение работ. Основанием для начала работ может служить Акт освидетельствования скрытых работ по подготовке поверхности перекрытия к устройству подвесных потолков.
2.2. Потолочные работы осуществляют в соответствии с требованиями СНиП 3.04.01-87, Рабочего проекта и Проекта производства работ. Замена предусмотренных проектом материалов и составов допускается только по согласованию с проектной организацией и Заказчиком.
2.3. Выбор материалов каркаса подвесных потолков (металлические или смешанные) проводят в зависимости от назначения и вида применяемых лицевых отделочных элементов.
2.4. Для устройства подвесного потолка типа Армстронг применяют двухосный каркас в одном уровне, который состоит из главных неразрезных элементов, проходящих через все помещение и расположенных перпендикулярно к ним второстепенных разрезных элементов, образующих ячейки, в которые укладывают лицевые отделочные элементы (см. рис.1).

Рис.1. Подвесная система
2.5. Главные и второстепенные элементы каркасов в одном уровне выполняют из малоразмерных гнутых профилей листовой стали, алюминиевых сплавов и древесины.

Рис.2. Соединительные элементы подвесной системы
2.6. Главные элементы каркаса в одном уровне по длине соединяют с помощью накладок, закрепляемых болтами или вырубленными язычками в стенках профилей.
2.7. Второстепенные элементы крепят к главным с помощью шплинтов, пластинчатых хомутов или пружин.

Рис.3. Соединения элементов каркаса: а) соединение главных элементов по длине при помощи накладок и вырубленных язычков; б) соединение второстепенных элементов с главными при помощи шплинта. 1 - главный элемент; 2 - второстепенный элемент; 3 - накладка; 4 - вырубной язычок; 5 - шплинт
2.8. Элементы каркаса подвесного потолка к основным конструкциям зданий крепят с помощью подвесок, которые, с одной стороны, имеют узлы и детали крепления к перекрытиям, а с другой - к каркасу.
2.9. Подвески в зависимости от условий эксплуатации подвесного потолка и с учетом его жесткости подразделяют на два вида: гибкие и жесткие. Подвески состоят из двух частей и устройства для регулирования высоты, обеспечивающего установку каркаса на заданной отметке.
2.10. Гибкие подвески выполняют из оцинкованной стальной проволоки диаметром 2,5-3 мм, стальных лент толщиной 0,6-0,8 мм, а жесткие - из круглых стержней диаметром 5-12 мм, полос толщиной 2-4 мм, уголковых и других профилей.
Виды подвесок приведены на рис.4.

Рис.4. Виды подвесок и элементов их крепления: а) варианты подвесок; б) крепление кронштейнов пристрелкой; в) крепление кронштейнов при помощи распорных и закладных деталей
2.11. Крепление подвесок к основным конструкциям здания производят в зависимости от конструкции перекрытия: к железобетонной плите перекрытия - с помощью кронштейнов, которые пристреливаются к плите дюбель-гвоздями (рис.4б), и с помощью распорных и закладных деталей (рис. 4в); к стальным конструкциям - с помощью хомутов или болтов; к деревянным перекрытиям - на гвоздях, шурупах и скобах.
2.12. Кроме указанных выше способов широко распространено крепление подвесных потолков с каркасом из арматурной стали к выпускам арматуры из швов железобетонных плит.
2.13. Подвесные потолки поэлементной сборки могут применяться в помещениях с относительной влажностью воздуха до 70% и температурой не ниже 15 °С при отсутствии агрессивных сред.
2.14. Монтаж потолков следует выполнять только в период отделочных работ (в зимнее время при подключенном отоплении).
2.15. Допустимый относительный прогиб для сборных подвесных потолков допускается не более 1/250 пролета. Конструкции потолков рассчитаны только на собственный вес и исключают возможность дополнительных монтажных нагрузок.
2.16. Прокладку трубопроводов водоснабжения в надпотолочном пространстве рекомендуется выполнять в лотках, закрепленных с уклоном в сторону расположения сантехнических шахт.
2.17. Крепление инженерных коммуникаций, вентиляционных коробов, трубопроводов и светильников к перекрытию должно выполняться на отдельных подвесках, не связанных с подвесками крепления подвесных потолков.
Все виды сборных подвесных потолков должны иметь конструктивное решение, позволяющее вести их монтаж снизу, а также снимать в любом месте отдельные панели или участки потолка для ремонта проводок или установки светильников. В надпотолочном пространстве не допускается прокладка сгораемых элементов оборудования или материалов.
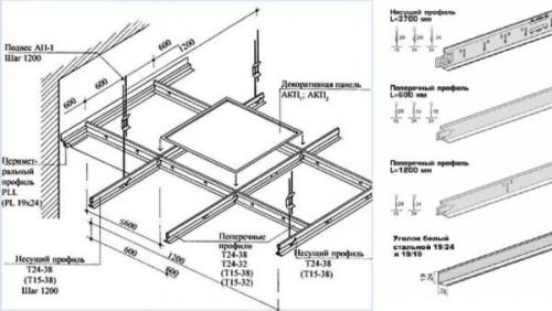
Детали подвесного потолка армстронг. Как устроен подвесной потолок «Армстронг»
Подвесной поток «Армстронг» – это запатентованная система, которая представляет собой следующую простую, но эффективную конструкцию:
- Направляющие Т-образного сечения, которые монтируются в монтажном горизонте в ортогональном направлении по отношению друг к другу, образуя прямоугольники и квадраты с габаритами от 300 х 300 мм до 600 х 1200 мм для монтажа облицовочных плиток.
- Профильные направляющие, которые устанавливаются между продольными несущими элементами. Имеют тот же Т-образный профиль, но не снабжаются отверстиями для подвесов. Монтируются на выступающие полки продольных профилей.

- Угловые профили, которые обрамляют всю подсистему. Крепятся к стенам по периметру комнаты. Представляют собой металлические уголки с полимерным покрытием и отверстиями для монтажа к строительной конструкции на саморезы.
- Подвесы для фиксации профильных элементов к низу плиты перекрытия. Оснащаются крючками-зацепами, а также резьбовыми сопряжениями для корректировки высоты монтажного горизонта.
- Главный конструктивный элемент подвесного потолка «Армстронг» – это плитки, которые образуют декоративную поверхность конструкции. Укладываются в каждую клетку, образованную направляющими, с обратной стороны подсистемы.
- Лампы, диффузоры для вентиляции, динамики для радио оповещения и другие приборы, которые должны монтироваться в помещениях для нормальной эксплуатации, согласно проекту и требованиям СНиП.

Со времён изобретения и внедрения данной системы, принципиальная схема устройства потолка «Армстронг» практически не менялась. С годами совершенствовались лишь материалы направляющих, типы осветительных приборов, а также сами декоративные плитки.