ТЕХНОЛОГИИ устройства подвесных потолков. Установка конструкции из плит
ТЕХНОЛОГИИ устройства подвесных потолков. Установка конструкции из плит
Несмотря на разнообразие материалов, технология установки подвесного потолка любого типа примерно одинакова. Отдельно можно выделить только монтаж натяжных потолков.
Не рекомендуется бросать, ставить на угловые поверхности или переворачивать.
Установку потолка можно рассмотреть на примере устройства потолочных плит, которые выпускаются в основном размером 600х600 и 1200х600 мм. Перед началом работ надо приготовить необходимые материалы и инструменты:
1. Панели для подвесной конструкции.
2. Металлические профили и подвесы.
3. Уровень.
4. Плоскогубцы.
5. Рулетку.
6. Шуруповерт или дрель.
7. Болгарку.
8. Саморезы и дюбели.
Технология монтажа не вызывает никаких трудностей. Начинаются работы с нанесения разметки. Расстояние от базового потолка до подвесного будет зависеть только от желания владельца и от целей использования этого пространства. Если планируется расположить над потолком разные коммуникации, то это следует учитывать. Разметка может быть проведена при помощи спиртового или лазерного уровня или же отбивочной (красящей) веревки.
Подготовительные работы при устройстве потолков бескаркасной конструкции.
Если над потолком будут проходить электрические провода, их следует плотно зафиксировать специальными стяжками. Начинать монтаж необходимо с того участка, который первым бросается в глаза при входе в помещение. Если плиты придется подрезать, то такие куски лучше устанавливать над дверью или в менее заметных углах.
По периметру помещения следует разместить угловые металлические профили, которые нужно прикрепить саморезами длиной 100 мм. На бетонной стене придется для начала просверлить отверстия для дюбелей, установить их и только потом вкручивать саморезы.
Далее монтируется основа каркаса, для чего используются промежуточные профили. Они будут фиксировать панели подвесного потолка. Расстояние между профилями — это ширина потолочной плитки. Как правило, используются промежуточные профили 1,2 м или 0,6 м длиной и длинные поперечные профили-опоры. На угловых профилях противоположных стен отметить длину среднего, например 1,2 м. Проверить рулеткой поперечное расстояние и перенести его на сам профиль. Лишнее срезать болгаркой. Установить поперечный профиль, закрепляя его на угловых.
Устройство потолков. Конструктивные особенности современных потолков
Современные тенденции в устройстве и дизайне потолков направлены на минимизацию трудовых затрат и получение максимального эстетического эффекта. Поэтому практически все красивые потолки являются подвесными конструкциями, за которыми можно скрыть недостатки базовой поверхности, проводку и коммуникации. Тем самым значительно сокращаются сроки ремонта и становится возможной экономия средств, так как нет необходимости в приобретении материалов на шпаклевание и выравнивание базового перекрытия.

Дизайн потолка в спальне
Из подвесных наиболее популярны следующие виды конструкций:
- натяжные;
- гипсокартонные;
- реечные;
- стеклянные.
Принципы устройства каркаса одинаковы для каждого из этих видов потолков.

Пример устройства подвесного потолка
Основные требования к удерживающим конструкциям следующие:
- прочность;
- способность выдерживать расчетные весовые нагрузки;
- экологическая безопасность;
- пожаробезопасность;
- влагостойкость.
В соответствии с этими критериями для устройства каркасов подвесных конструкций выбирают наиболее надежные материалы — алюминий, высокопрочный пластик, хорошо высушенную и обработанную огнебиозащитными составами древесину, металл. Для устройства пластиковых потолков существуют свои каркасные системы, элементы которых изготовлены из более прочного пластика.
Цены на натяжной потолок
натяжной потолок

Готовый потолок из поливинилхлоридных секций
Для того чтобы понять, как сделать потолок, нужно знать, что существуют два основных этапа работ этого плана: черновая (предчистовая) отделка и чистовая. Первая необходима в том случае, если поверхность готовят к побелке, окрашиванию или оклейке обоями. При возведении подвесных конструкций предчистовой этап работ игнорируют. Но вместо него занимаются устройством каркаса (обрешетки).

Текстильный натяжной потолок

Основные этапы монтажа натяжного потолка
Натяжные потолки
В этой статье вы найдете много полезной информации о том, что собой представляют натяжные потолки, какие их виды существуют. Также детально рассмотрены основные способы крепления, приведена пошаговая инструкция по установке.
Устройство подвесного потолка армстронг. Организация и технология выполнения работ
2.1. В соответствии со СНиП 3.01.01-85* "Организация строительного производства" до начала выполнения строительно-монтажных (в том числе подготовительных) работ на объекте Генподрядчик обязан получить в установленном порядке разрешение от Заказчика на выполнение работ. Основанием для начала работ может служить Акт освидетельствования скрытых работ по подготовке поверхности перекрытия к устройству подвесных потолков.
2.2. Потолочные работы осуществляют в соответствии с требованиями СНиП 3.04.01-87, Рабочего проекта и Проекта производства работ. Замена предусмотренных проектом материалов и составов допускается только по согласованию с проектной организацией и Заказчиком.
2.3. Выбор материалов каркаса подвесных потолков (металлические или смешанные) проводят в зависимости от назначения и вида применяемых лицевых отделочных элементов.
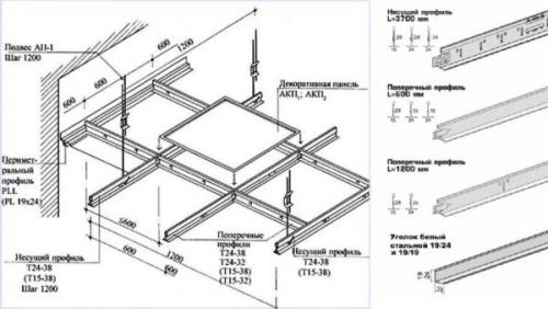
2.4. Для устройства подвесного потолка типа Армстронг применяют двухосный каркас в одном уровне, который состоит из главных неразрезных элементов, проходящих через все помещение и расположенных перпендикулярно к ним второстепенных разрезных элементов, образующих ячейки, в которые укладывают лицевые отделочные элементы (см. рис.1).

Рис.1. Подвесная система
2.5. Главные и второстепенные элементы каркасов в одном уровне выполняют из малоразмерных гнутых профилей листовой стали, алюминиевых сплавов и древесины.

Рис.2. Соединительные элементы подвесной системы
2.6. Главные элементы каркаса в одном уровне по длине соединяют с помощью накладок, закрепляемых болтами или вырубленными язычками в стенках профилей.
2.7. Второстепенные элементы крепят к главным с помощью шплинтов, пластинчатых хомутов или пружин.

Рис.3. Соединения элементов каркаса: а) соединение главных элементов по длине при помощи накладок и вырубленных язычков; б) соединение второстепенных элементов с главными при помощи шплинта. 1 - главный элемент; 2 - второстепенный элемент; 3 - накладка; 4 - вырубной язычок; 5 - шплинт
2.8. Элементы каркаса подвесного потолка к основным конструкциям зданий крепят с помощью подвесок, которые, с одной стороны, имеют узлы и детали крепления к перекрытиям, а с другой - к каркасу.
2.9. Подвески в зависимости от условий эксплуатации подвесного потолка и с учетом его жесткости подразделяют на два вида: гибкие и жесткие. Подвески состоят из двух частей и устройства для регулирования высоты, обеспечивающего установку каркаса на заданной отметке.
2.10. Гибкие подвески выполняют из оцинкованной стальной проволоки диаметром 2,5-3 мм, стальных лент толщиной 0,6-0,8 мм, а жесткие - из круглых стержней диаметром 5-12 мм, полос толщиной 2-4 мм, уголковых и других профилей.
Виды подвесок приведены на рис.4.

Рис.4. Виды подвесок и элементов их крепления: а) варианты подвесок; б) крепление кронштейнов пристрелкой; в) крепление кронштейнов при помощи распорных и закладных деталей
2.11. Крепление подвесок к основным конструкциям здания производят в зависимости от конструкции перекрытия: к железобетонной плите перекрытия - с помощью кронштейнов, которые пристреливаются к плите дюбель-гвоздями (рис.4б), и с помощью распорных и закладных деталей (рис. 4в); к стальным конструкциям - с помощью хомутов или болтов; к деревянным перекрытиям - на гвоздях, шурупах и скобах.
2.12. Кроме указанных выше способов широко распространено крепление подвесных потолков с каркасом из арматурной стали к выпускам арматуры из швов железобетонных плит.
2.13. Подвесные потолки поэлементной сборки могут применяться в помещениях с относительной влажностью воздуха до 70% и температурой не ниже 15 °С при отсутствии агрессивных сред.
2.14. Монтаж потолков следует выполнять только в период отделочных работ (в зимнее время при подключенном отоплении).
2.15. Допустимый относительный прогиб для сборных подвесных потолков допускается не более 1/250 пролета. Конструкции потолков рассчитаны только на собственный вес и исключают возможность дополнительных монтажных нагрузок.
2.16. Прокладку трубопроводов водоснабжения в надпотолочном пространстве рекомендуется выполнять в лотках, закрепленных с уклоном в сторону расположения сантехнических шахт.
2.17. Крепление инженерных коммуникаций, вентиляционных коробов, трубопроводов и светильников к перекрытию должно выполняться на отдельных подвесках, не связанных с подвесками крепления подвесных потолков.
Все виды сборных подвесных потолков должны иметь конструктивное решение, позволяющее вести их монтаж снизу, а также снимать в любом месте отдельные панели или участки потолка для ремонта проводок или установки светильников. В надпотолочном пространстве не допускается прокладка сгораемых элементов оборудования или материалов.
Детали подвесного потолка армстронг. Как устроен подвесной потолок «Армстронг»
Подвесной поток «Армстронг» – это запатентованная система, которая представляет собой следующую простую, но эффективную конструкцию:
- Направляющие Т-образного сечения, которые монтируются в монтажном горизонте в ортогональном направлении по отношению друг к другу, образуя прямоугольники и квадраты с габаритами от 300 х 300 мм до 600 х 1200 мм для монтажа облицовочных плиток.
- Профильные направляющие, которые устанавливаются между продольными несущими элементами. Имеют тот же Т-образный профиль, но не снабжаются отверстиями для подвесов. Монтируются на выступающие полки продольных профилей.

- Угловые профили, которые обрамляют всю подсистему. Крепятся к стенам по периметру комнаты. Представляют собой металлические уголки с полимерным покрытием и отверстиями для монтажа к строительной конструкции на саморезы.
- Подвесы для фиксации профильных элементов к низу плиты перекрытия. Оснащаются крючками-зацепами, а также резьбовыми сопряжениями для корректировки высоты монтажного горизонта.
- Главный конструктивный элемент подвесного потолка «Армстронг» – это плитки, которые образуют декоративную поверхность конструкции. Укладываются в каждую клетку, образованную направляющими, с обратной стороны подсистемы.
- Лампы, диффузоры для вентиляции, динамики для радио оповещения и другие приборы, которые должны монтироваться в помещениях для нормальной эксплуатации, согласно проекту и требованиям СНиП.

Со времён изобретения и внедрения данной системы, принципиальная схема устройства потолка «Армстронг» практически не менялась. С годами совершенствовались лишь материалы направляющих, типы осветительных приборов, а также сами декоративные плитки.