Подвесные потолки и подвесная система Армстронг. Как устроен подвесной потолок «Армстронг»
- Подвесные потолки и подвесная система Армстронг. Как устроен подвесной потолок «Армстронг»
- Потолок Армстронг калькулятор. Калькулятор расчёта потолка Армстронг
- Подвесной потолок Армстронг монтаж. Особенности системы
- Армстронг потолок официальный сайт. Armstrong (Армстронг)
- Армстронг потолок производитель. Armstrong World Industries
Подвесные потолки и подвесная система Армстронг. Как устроен подвесной потолок «Армстронг»
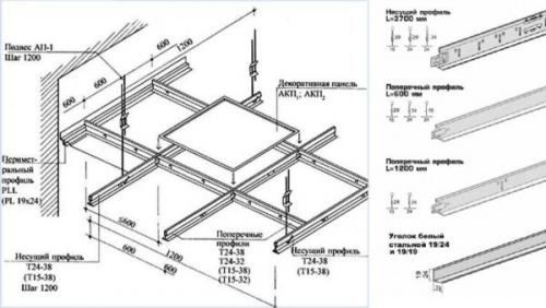
Подвесной поток «Армстронг» – это запатентованная система, которая представляет собой следующую простую, но эффективную конструкцию:
- Направляющие Т-образного сечения, которые монтируются в монтажном горизонте в ортогональном направлении по отношению друг к другу, образуя прямоугольники и квадраты с габаритами от 300 х 300 мм до 600 х 1200 мм для монтажа облицовочных плиток.
- Профильные направляющие, которые устанавливаются между продольными несущими элементами. Имеют тот же Т-образный профиль, но не снабжаются отверстиями для подвесов. Монтируются на выступающие полки продольных профилей.

- Угловые профили, которые обрамляют всю подсистему. Крепятся к стенам по периметру комнаты. Представляют собой металлические уголки с полимерным покрытием и отверстиями для монтажа к строительной конструкции на саморезы.
- Подвесы для фиксации профильных элементов к низу плиты перекрытия. Оснащаются крючками-зацепами, а также резьбовыми сопряжениями для корректировки высоты монтажного горизонта.
- Главный конструктивный элемент подвесного потолка «Армстронг» – это плитки, которые образуют декоративную поверхность конструкции. Укладываются в каждую клетку, образованную направляющими, с обратной стороны подсистемы.
- Лампы, диффузоры для вентиляции, динамики для радио оповещения и другие приборы, которые должны монтироваться в помещениях для нормальной эксплуатации, согласно проекту и требованиям СНиП.

Со времён изобретения и внедрения данной системы, принципиальная схема устройства потолка «Армстронг» практически не менялась. С годами совершенствовались лишь материалы направляющих, типы осветительных приборов, а также сами декоративные плитки.
Потолок Армстронг калькулятор. Калькулятор расчёта потолка Армстронг

Хотите разместить рекламу ваших товаров или услуг на сайте cdelayremont.ru? Перейдите на страницу реклама , чтобы узнать о вариантах и условиях сотрудничества.
Если вы читаете эти строки, то ваш выбор для отделки потолка – подвесной потолок типа армстронг. Нет смысла перечислять огромный перечень достоинств этого решения, просто предлагаем вам свою скромную помощь в виде бесплатного онлайн-калькулятора для расчета потолка армстронг.
Расчет каркаса, креплений и плит для потолка армстронг
Данный калькулятор позволяет быстро рассчитать количество следующих элементов:
- декоративных панелей (плит);
- направляющих, из которых должен быть изготовлен каркас;
- угловых профилей;
- подвесов
Т.е. вы будете иметь на руках все необходимые данные, которых будет достаточно для похода в строительный супермаркет. Конечно, вы и сами бы смогли все прикинуть, но зачем, когда есть надежный и проверенный временем онлайн-калькулятор для расчета потолка армстронг?!
Полезные рекомендации по проведению работ
Не бойтесь изменять геометрию стенового профиля: если его необходимо уложить в углах, то всегда можно сделать надрез и изгиб – проводить те же операции, что и с любым уголком.

Редко так получается, что вся площадь потолка разбивается на квадраты одинаковой величины. Многие производители на этот счет советуют обрезать декоративные плиты таким образом, чтобы оставалось примерно половина ширины. Но при должной сноровке лучше градиентно менять размеры плит. Это позволит избежать заметных переходов и даже сделать разницу в размерах практически незаметной.
Если так получилось, что пришлось делать обрезку панелей, то обрезанный ряд нужно располагать вдоль противоположной от двери стены.
Периметральный профиль может крепиться к стене с шагом от 0,3 до 0,6 м. Это зависит от нагрузки со стороны каркаса, осветительных приборов и собственно плит.
Несущие профили относительно коротких стен нужно стараться располагать параллельно. Такой подход обусловлен сокращением количества стыков несущих профилей, что в целом положительно сказывается на прочности каркаса.
Подвесной потолок Армстронг монтаж. Особенности системы
Точное название такого типа покрытия – плиточно-ячеистый подвесной потолок. В нашей стране он традиционно называется Armstrong по имени американской компании-производителя. Именно эта фирма более 150 лет назад начала производить среди множества прочих строительных материалов плиты из натурального волокна. Подобные плиты сегодня используются для монтажа потолка типа Armstrong. Хоть устройство и технологии установки подобных подвесных систем несколько изменились, но название осталось как нарицательное имя.

Плиточно-ячеистые потолочные покрытия Armstrong представляют собой каркасные системы из металлических профилей , подвесов, которые крепятся к бетонному основанию и минеральных плит, которые являются непосредственно покрытием. Материал для них получают из минеральной ваты с добавлением полимеров, крахмала, латекса и целлюлозы. Цвет плит преимущественно белый, но декоративные покрытия могут иметь другие расцветки. Детали каркаса сделаны из легких металлов: алюминия и нержавеющей стали.
Масса одной минеральной плиты может быть от 1 до 3 кг, нагрузка на 1 кв. м. получается от 2.7 до 8 кг. Изделия имеют преимущественно белый цвет, они довольно хрупкие, подвержены действию влаги и высоких температур, поэтому их хранят в надежной влагозащитной упаковке. Режутся такие плиты обычным малярным ножом. Есть и более прочные варианты, изготовленные на основе латекса и пластика, эти требуют для обработки более твердого инструмента.

Достоинства потолочных покрытий типа Armstrong следующие:
- легкость всей конструкции и простота установки;
- возможность скрыть все неровности и дефекты потолочного перекрытия;
- безопасность и экологическая чистота материала;
- возможность легкой замены плит с дефектами;
- хорошая защита от шума.
Подвесные потолки после установки образуют пустоты, в которые обычно прячут электрические кабели и другие коммуникации. Если требуется ремонт или установка новой проводки, то к ней легко подобраться, сняв несколько плит, потом их просто ставят на место.

Есть у потолков данного типа свои недостатки:
- так как они устанавливаются на некотором расстоянии от потолочного перекрытия, то забирают высоту у помещения, в слишком низких комнатах ставить систему Armstrong не рекомендуется;
- минеральные плиты довольно хрупкие, они боятся воды, так что в помещениях с повышенной влажностью их лучше не монтировать;
- потолки Armstrong чувствительны к перепадам температур.
Обычно исходя из этих минусов, выбирают определенные места, где устанавливают потолки Armstrong. Лидером здесь являются офисы, учреждения, коридоры в различных зданиях. Но часто хозяева квартир при ремонте делают у себя подобные покрытия, чаще всего в прихожих. В помещениях, где может быть повышенная влажность, например, на кухнях, проблема тоже легко решается – ставятся специальные виды покрытий Armstrong: гигиенические с защитой от пара, налипания жира и функциональные, влагостойкие.
Армстронг потолок официальный сайт. Armstrong (Армстронг)
Компания Armstrong — старейшая компания-производитель подвесных потолков в мире, первый офис открылся в 1860 г. в Ланкастере. За 150 летнюю историю, компания смогла превратиться в трансконтинентальную корпорацию, владеющую 44 заводами в 12 странах мира и имеющую в своем штате 150 000 сотрудников.
Продукция компании стала настолько известной, что при любом упоминании подвесных потолков невольно вспоминается название Armstrong. На российском рынке компания успешно предлагает свою продукцию уже второе десятилетие, и держит первое место среди производителей потолочной плиты из минерального волокна. Основные подразделения компании по выпуску потолочных плит находятся в Великобритании, США, Германии, Испании, Франции и Китае.

Armstrong ежегодно обновляет модельный ряд подвесных потолков, инженеры с мировым именем работают над созданием потолочных систем, способных сделать Вашу жизнь чуть более комфортной. Компания может предложить продукцию в широком ценовом диапазоне, от эконом потолков до элитных вариантов отделки потолка. Это делает продукцию доступной для любого контингента потребителей. Armstrong думает об удовлетворении всех эстетических желаний своего покупателя, именно поэтому каждый день в продаже сотни новых моделей, дизайнерских серий потолочных систем, которым найдется место и в Вашем доме и офисе. Вся продукция проходит тщательные испытания на прочность и безопасность, что является важнейшим фактором при выборе и приобретении материала. Покупая продукцию завода Armstrong, Вы можете быть уверены, что она никогда не нанесет вреда Вашему здоровью и кошельку. Вся продукция компании, начиная от самых недорогих потолочных плит очень долговечна, и если Вы собрались делать ремонт хорошо и надолго, то без Armstrong’а Вам не обойтись.
Армстронг потолок производитель. Armstrong World Industries
Стиль этой статьи неэнциклопедичен или нарушает нормы литературного русского языка . Armstrong World Industries, Inc. корпорация в штате Пенсильвания, США. Основана в 1891 году.Имеет 32 завода и более 8500 сотрудников.В 2011 году чистые продажи компании составили 2,86 млрд долл. США, операционная прибыль — 239,2 млн долл. США. Согласно главе 11 Кодекса США о банкротстве , реорганизована в 2006 году.
Компания является лидером по производству подвесных потолков , растровых потолков, модульных потолков (он же — минеральный потолок или потолок из минерального волокна, потолок, который в России принято называть подвесной потолок «Армстронг»). В России все подвесные потолки модульного типа, из каких бы материалов они ни были бы изготовлены, называют либо «Армстронг» (Armstrong), либо «типа Армстронг». Компания Armstrong — всемирно известный производитель потолочных плит из минерального волокна в мире, само название «Армстронг» стало употребляться как имя нарицательное ( эпоним ).
|
