Подвесной стеклянный потолок армстронг. Расчет комплектующих элементов
- Подвесной стеклянный потолок армстронг. Расчет комплектующих элементов
- Потолок армстронг матовое стекло. Как устроен подвесной потолок «Армстронг»
- Акриловый потолок с подсветкой. Конструкция акрилового потолка
- Стеклянные панели на потолок. Разновидности стекол для потолочных панелей
- Потолки из оргстекла. Особенности материала
- Потолки из акрилового стекла. Резка оргстекла
- Подвесной зеркальный потолок. Характеристика и преимущества материала
Подвесной стеклянный потолок армстронг. Расчет комплектующих элементов
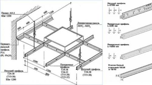
Для выполнения правильных расчетов рекомендуется начертить план помещения, в котором будет устанавливаться зеркальный потолок Армстронг. Начальным показателем при закупке комплекта зеркального потолка будет его площадь. Количество пристенного L-профиля равно периметру потолка. Несущий Т-образный профиль монтируется вдоль длинной стены комнаты с интервалом 600 мм.
Потолочные плиты на зеркальные потолки Армстронг выпускают двух размеров 600 х 600 мм и 1200 х 600 мм. В зависимости от того, какие плиты Вы запланировали применять для отделки потолка, между несущими Т-профилями монтируют поперечный Т-профиль.
Крепление универсального подвеса к существующему потолку
По осям несущих потолочных профилей с шагом 1 м крепят универсальные подвесы. Они состоят из двух спиц соединенных между собой лепестковой пружиной. Это дает возможность изменять длину подвеса. Одна спица имеет крюк для подвеса профиля, а вторая петлю, за которую она крепится к существующему потолку.
Важно знать! При выполнении замеров помещения обязательно измерьте каждую стену в отдельности. Не всегда углы комнаты равны 90 градусам.
Потолочные плиты на подвесной зеркальный потолок Армстронг изготавливают из полированного стекла марки М1. Толщина их составляет 4 мм, а на тыльную сторону нанесено зеркальное покрытие. Такие плиты могут иметь рисунок, который придает оригинальный световой эффект.
Плита легко режется простым стеклорезом. Металлические части каркаса могут так же выполняться в разных цветах. Самые популярные оттенки — это хром и золото. Крепеж пристенного профиля выполняется с шагом 35-40 см.

Потолок армстронг матовое стекло. Как устроен подвесной потолок «Армстронг»
Подвесной поток «Армстронг» – это запатентованная система, которая представляет собой следующую простую, но эффективную конструкцию:
- Направляющие Т-образного сечения, которые монтируются в монтажном горизонте в ортогональном направлении по отношению друг к другу, образуя прямоугольники и квадраты с габаритами от 300 х 300 мм до 600 х 1200 мм для монтажа облицовочных плиток.
- Профильные направляющие, которые устанавливаются между продольными несущими элементами. Имеют тот же Т-образный профиль, но не снабжаются отверстиями для подвесов. Монтируются на выступающие полки продольных профилей.

- Угловые профили, которые обрамляют всю подсистему. Крепятся к стенам по периметру комнаты. Представляют собой металлические уголки с полимерным покрытием и отверстиями для монтажа к строительной конструкции на саморезы.
- Подвесы для фиксации профильных элементов к низу плиты перекрытия. Оснащаются крючками-зацепами, а также резьбовыми сопряжениями для корректировки высоты монтажного горизонта.
- Главный конструктивный элемент подвесного потолка «Армстронг» – это плитки, которые образуют декоративную поверхность конструкции. Укладываются в каждую клетку, образованную направляющими, с обратной стороны подсистемы.
- Лампы, диффузоры для вентиляции, динамики для радио оповещения и другие приборы, которые должны монтироваться в помещениях для нормальной эксплуатации, согласно проекту и требованиям СНиП.

Со времён изобретения и внедрения данной системы, принципиальная схема устройства потолка «Армстронг» практически не менялась. С годами совершенствовались лишь материалы направляющих, типы осветительных приборов, а также сами декоративные плитки.
Акриловый потолок с подсветкой. Конструкция акрилового потолка
Оргстекло укладывается на каркас, чаще всего металлический. По предварительно нанесённой разметке к перекрытию крепятся подвесы, а к стенам прикручиваются угловые профили. Затем устанавливаются направляющие вдоль и поперёк помещения. В получившиеся ячейки укладывают акриловые плиты.
В дальнейшем любую панель можно снять и вернуть на место (например, чтобы получить доступ к коммуникациям).
Также делают обрешётку из деревянных реек. Но этот материал не подходит для влажных помещений, так как плохо переносит сырость.

Акриловые потолочные панели выпускаются в разных размерах. Наиболее распространённые — квадраты со сторонами 29,5 или 59,5 см. Большие подходят для потолочных систем «Армстронг» (и легко комбинируются с панелями из других материалов). Несложные варианты можно собрать своими руками. Понадобятся сами плиты и профили.
По индивидуальным проектам делают потолки с панелями любых сложных форм, например, вытянутые, многоугольные и с изогнутыми краями. Это возможно благодаря тому, что оргстекло легко режется ножом или распиливается лобзиком. Каркас для таких конструкций тоже делают индивидуально, под заказ.
Оргстекло встречается в нескольких разновидностях. Прозрачный акрил пропускает до 95% света, матовый — 25-75%. Для потолка в основном используют рассеивающий вариант. Так получается комфортная для глаз атмосфера.
Поверхность чаще ровная, но встречается и рифлёная. Популярны узоры «соты», «пирамиды», «квадраты» и «булавочный укол». Иногда акриловое стекло тонируют, получая цветную поверхность.
Потолок составляют из одинаковых плит или отличный по оттенку и фактуре. Панели укладывают в шахматном или концентрическом порядке, рядами и т. п. можно нанести фотопечать (на всю поверхность или отдельные плитки). Дизайн дополняется выбором профиля из окрашенного алюминия или тонированного дерева.
Стеклянные панели на потолок. Разновидности стекол для потолочных панелей
Стекла являются ключевым элементом подобных конструкций. Для изготовления потолков применяется широкий выбор панелей, которые отличаются структурой, типом, толщиной, цветом и другими немаловажными параметрами. Отдельное внимание уделяется проверке качества стекла. Специалисты Гласстрой тщательно осматривают панели и проверяют отсутствие мелких дефектов. Ведь готовые конструкции должны иметь привлекательный вид, который будет подчеркивать все особенности конкретного помещения. Следует выделить наиболее популярные варианты стекла для потолочных панелей:
Для потолочных систем подбираются сравнительно тонкие стекла, которые позволяют снизить нагрузку на несущий каркас. Оптимальным вариантом является толщина 2-4 мм. При такой толщине можно сохранить визуальную привлекательность и естественную глубину материала. Стоит отметить, что на практике специалисты Гласстрой редко устанавливают прозрачные стекла. Ведь при полной прозрачности потолок с одинарным слоем будет просвечиваться и демонстрировать все содержимое под стеклом. Наиболее распространенными проектами являются потолки с зеркальным, витражным, матовым или акриловым вариантом панелей.
Из наиболее доступных и дешевых можно отметить матовый потолок. В совокупности с матовыми панелями данный вариант хорошо выглядит в помещении любой конфигурации. Стекло всегда освежает дизайн и придает новизны. С таким потолком люди будут чувствовать себя предельно комфортно и уютно. В совокупности с направленной подсветкой матовая потолочная система имеет солидный и богатый вид.
Среди дорогих моделей можно выделить варианты с витражами. Такой потолок подразумевает наличие художественных рисунков или узоров, которые выполнены из мелких стекол разнообразной геометрической формы. Как правило, стоимость подобных конструкций выше других из-за более высокой сложности монтажа и цены самого материала. Реальные фото стеклянного потолка с подсветкой и витражами можно просмотреть в соответствующем разделе.
Потолки из оргстекла. Особенности материала
Органическое стекло является общим названием акрилового стекла, полиметилметакрилата и плексигласа. Этот материал имеет характеристики, которые превосходят качества обычного стекла:
- ударопрочность;
- стойкость к кислотам;
- стойкость к воде;
- стойкость к ультрафиолету;
- отличная светопропускная способность – 92%, что позволяет создавать эффектную подсветку из оргстекла;
- экологичность – не выделяет вредных веществ;
- простота обработки – порезка, сверление, гибка.
Чтобы понимать окончательные свойства материала, следует разобраться, какое используется оргстекло для потолка, ведь оно может быть:
- экструзионным;
- литьевым.
Последнее прочнее экструзионного, способно выдержать выше нагрузки, лучше обрабатывается.
В основном оргстекло на потолок используется матовое. Такое покрытие выглядит привлекательно, слегка скрывая источники света. При этом мы получаем визуальное увеличение высоты потолка.
Поскольку материалу не страшна влага и вода, такие потолки могут свободно использоваться для ванных комнат, кухонь и прочих комнат с неблагоприятными условиями. В этих случаях применяется специальный профиль, не подверженный коррозии. Например, из алюминия. Ни в коем случае не стоит использовать деревянные бруски, которые под воздействием таких условий будут изменять свои размеры и форму. Поэтому проблемы могут начаться уже через неделю после монтажа такого потока. Можно посмотреть на фото, к чему это может привести.
Учитывая достаточную прочность оргстекла, потолок из него не испортится, если в него попадет, скажем, пробка от шампанского, в отличие от натяжных конструкций. Если панель рухнет на землю, она может лишь треснуть, не разлетаясь на множество осколков.
Однако не обошлось и без недостатков. Ведь этот материал имеет достаточно низкую температуру плавления и деформации. Поэтому рядом не могут находиться элементы освещения, подверженные сильному нагреву.
Вдобавок потолок их оргстекла «украдет» некоторое количество потолочного пространства. К тому же стоимость материала пока нельзя отнести к его плюсам.
Потолки из акрилового стекла. Резка оргстекла
Делать отверстия и нарезать акриловое стекло придётся самостоятельно. Производитель, предлагая потолок в комплекте, не может предусмотреть, сколько будет у вас светильников и какого размера понадобятся отверстия.
https://youtube.com/watch?v=DjPcRSAreIM
Итак:
- Поверхность стекла закрыта плёнкой, снимать которую не нужно до полного окончания монтажных работ. Она не помешает и при вырезании отверстий. Если по какой-то причине защита на стекле отсутствует, вместо неё нужно использовать подручный материал – ткань или даже пищевую целлофановую плёнку.
- Итак, перед началом резки, нужно карандашом наметить линию надреза. Сделав прямой или криволинейный надрез, на кассету следует надавить, отломив отделившуюся часть. Эта работа производится также, как и резка кафельной плитки или обычного стекла.
- Круглое отверстие можно вырезать с помощью круговой пилы,наметив его центр сверлом. Для сверления оргстекла применяют сверло с двойным углом (60° — 90°). Только оно поможет избежать образования сколов вокруг отверстия.
- При сверлении стекла толще пяти миллиметров, чтобы оно не растрескалось, нужно пользоваться охлаждающей смазкой-эмульсией. Для тонкого листа достаточно любой твёрдой и гладкой прокладки.
- При необходимости распилить большой лист, подойдёт любая мелкозубчатая пила, ножовка или лобзик. Если излом получился не очень аккуратный, его края шлифуют циклей, или мелкой наждачной бумагой.
Чем выгодно отличаются акриловые потолки от, например, потолка из гипсокартона – им не требуется после сборки никакой дополнительной обработки в виде шпаклёвки и окраски. Они после монтажа имеют законченный вид и делают помещение очень светлым даже без дополнительных подсветок. Служить такая конструкция будет неограниченно долго. Съёмные модули обеспечивают доступ к внутренним осветительным приборам и проводам. Их несложно снять, вымыть и установить на место – для этого нужна лишь стремянка.
Подвесной зеркальный потолок. Характеристика и преимущества материала
Зеркала – неотъемлемая часть интерьера офисных зданий, торговых центров, жилых помещений, бассейнов и ванных комнат. Это обсуловлено тем, что большие зеркальные поверхности придают пространству воздушность, легкость, яркость и делают дизайн презентабельным.

Зеркальный потолок – это вид отделки, основным материалом в которой выступает любая отражающая поверхность. Его выполняют из панелей, реек, натяжных полотен, подвесных конструкций. Сырьем для изготовления могут служить: зеркало (стекло амальгированное), зеркальная ПВХ пленка, акриловый пластик и металл.
Все зеркальные потолки имеют общие преимущества:
- Придают объем. Стираются четкие границы помещения – это очень выгодный ход в комнатах с малой площадью. Комната продолжится в неограниченное четкими линиями пространство, за счет этого отражающая плоскость визуально увеличит высоту.
- Улучшают освещение. Исходящий от ламп и солнца свет, многократно отражается на поверхности. Это позволяет сделать комнату ярче без использования дополнительных световых точек.
- Не боятся влаги. Поверхности устойчивы к высокой влажности, грибку и плесени, легко моются. Многие виды материалов (кроме ПВХ пленки и полистирола) способны выдерживать большие перепады температуры.
- Дополняют дизайн или становятся основным акцентом. Отделка зеркалами – это всегда эстетично и привлекательно. Использование их на потолке не совсем стандартно, однако, такое решение сделает дизайн неповторимым.
Зеркала отлично сочетаются с другими материалами для отделки потолков, поэтому их можно применять как декоративный элемент, для создания визуальных эффектов и игры света.
Чаще всего зеркальные потолки устанавливаются на основе подвесной конструкции, которая позволяет скрыть коммуникации, выступы, балки, установить встроенные светильники. С помощью такой отделки можно оборудовать стильный многоуровневый потолок.
Поверхность может быть выполнена в различной цветовой гамме, основная палитра: серебро, бронза, графит, титан, золото. Кроме этого фактура способна отражать свет и обстановку с разной степенью четкости (от размытого до детального).