Подвесная система для потолка Армстронг. Назначение и устройство Европодвеса для подвесной системы Армстронг
- Подвесная система для потолка Армстронг. Назначение и устройство Европодвеса для подвесной системы Армстронг
- Потолок Армстронг 600х1200. Армстронг Потолочные панели - описание
- Потолок Армстронг под ключ. Устройство потолков Армстронг
- Подвесная система Армстронг Т-24. Чем отличаются подвесные системы Т-24 и Т-15 у производителей?
Подвесная система для потолка Армстронг. Назначение и устройство Европодвеса для подвесной системы Армстронг
Европодвес используется как крепеж подвесной системы к основанию потолка. Наиболее часто используемые типоразмеры — 500 мм и 1000 мм. В целом, типоразмеры Европодвесов варьируются от 250 мм до 3000 мм.
Подвесы для потолка Армстронг — это универсальный крепежный элемент. Чаще всего подвесы используются при монтаже подвесных потолков, например, грильято, металлических, минеральных плит и т.д.
Подвесы используются при монтаже подвесного потолка, когда расстояние между базовым и подвесным потолком Армстронг значительное.
Подвес для потолка Армстронг в специализированной среде называется Европодвесом.

Европодвес состоит из следующих элементов:
- тяга с кольцом — крепится к основанию потолка;
- тяга с крючком — крепится к несущему профилю системы;
- пружинка, которая позволяет регулировать высоту каркаса.
Качественный Европодвес — крепежный элемент подвесной системы, выполненный из оцинкованной стали. Он пропускается через отверстия основного профиля. Европодвес обеспечивает надежное крепление подвесного потолка. С помощью Европодвеса обеспечивается дополнительное подпотолочное пространство для размещения и скрытия коммуникаций, а также для их обслуживания.
Основная функция Европодвеса — крепление к базовому элементу здания всей крепежной конструкции подвесного потолка.
Благодаря использованию Европодвеса, поверхность подвесного потолка получается ровной, перепады базового потолка в помещении скрываются.
Назначение европодвеса для подвесного потолка:
- надежное крепление подвесного потолка;
- организация подпотолочного пространства для удобного размещения коммуникаций и их обслуживания.
Потолок Армстронг 600х1200. Армстронг Потолочные панели - описание
Потолок Армстронг - потолочные панели изготавливаемые лидером потолочной продукции фирмой Армстронг (Armstrong). Панели устанавливаются в подвесную систему Т-24 или Т-15, скрытые системы подвесных потолков используют реже. Размеры потолочных плит кратны 300 мм, распространенный размер - 600х600 мм, изготавливаются панели 600х1200, 1200х1200 мм и другие форм-факторы под заказ. Цена на потолки зависит от свойств плиты, Армстронг производит несколько серий потолочных панелей, они представлены в своих группах товаров. Товары в каждой группе имеют похожие характеристиками и используются в одних типах помещений с похожими условиями эксплуатации. Серия Basic - эконом класса, цена ниже остальных категорий, применяются в офисах с экономичным ремонтом. Серия Armstrong Prima - средняя ценовая категория, применяются в офисах, общественных помещениях приемных и общих переговорных. Акустические потолки Армстронг (dB, OP)- улучшены свойства и повышена цена, данный тип потолков устанавливается в специализированных комнатах для переговоров, в залах с расчетными акустическими требованиями, кинотеатрах. Гигиенические потолки Армстронг покупают в больницы, детские сады и санатории. Цена на них выше средней, при эксплуатации в окружающую среду не выделяются примеси и механические частицы, применяются в операционных. Категория дизайнерских панелей содержит дорогую продукцию, которая используется дизайнерами для создания индивидуальных интерьеров. Выбирайте материалы по ценовой категории и потребностям:
- недорогой ремонт в офисе - покупайте Байкал, Оазис, Ритефл - потолки из серии Basic - низкие цены
- бизнес растет и фирма расширяется, в новый офис устанавливайте потолок Армстронг по средним ценам серии Prima - Dune, Plain, Perla
- Вы стали боссом, личный кабинет и переговорная - акустические потолки для создания комфортных условий труда - Armstrong Ultima, Optima, Neeva - дорогой потолок Армсьронг премиум классе!
У нас Вы можете купить потолок Армстронг по цене ниже, чем у конкурентов, заказать доставку и монтаж. Следует иметь ввиду, что потолочные панели каждой серии целесообразно устанавливать на соответвующую этой серии подвесную систему. Например потолки армстрон по низкой цене имеют вес не более 3-4 кг/м2, соответственно и подвесная система должна быть не хуже. Панели сегмента Prima как правило весят 4-5 кг/м2, разница небольшая, но с учетом установки оборудования - светильники, вентиляция, удельный вес может увеличиться, поэтому рекомендуем использовать более прочную подвесную систему. И наконец дизайнерские панели и потолки Армстронг высшей ценовой категории могут весить 6-7 кг на квадратный метр даже более. Для этих панелей следует использовать самые прочные модели подвесных систем. Наши монтажники знают все эти правила и устанавливают потолки что бы цена на Армстронг с подвесной системой не была завышена, в то же время прочность конструкции не пострадала!
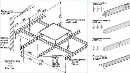
Потолок Армстронг под ключ. Устройство потолков Армстронг
Конструктивно система представляет собой каркас подвесного потолка Армстронг, который собирается из металлического профиля в форме ячеек размером 60х60 см и плит стабильной геометрической формы.
Плиты могут быть сделаны из разных материалов, в частности:
- листы металла с перфорацией или без нее;
- зеркало;
- стекло;
- дерево;
- пластик;
- органические или минеральные природные материалы, бумага.
На заметку! Гипсокартонные плиты отличаются малой влагостойкостью, изготовленные из минеральной ваты осыпаются, могут нанести вред здоровью человека, если волокна попадут в дыхательные пути.

Стоит подробнее рассмотреть профильную систему подвесной конструкции.
Для обустройства каркаса нужны следующие элементы:
- Т-образный несущий профиль длиной 370 см. Монтируется параллельно короткой стене. Если длина стены более 370 см, ламель наращивают специальными креплениями, если длина стены меньше, профиль подрезают.
- Т-образный поперечный профиль длиной 60 см.
- Т-образный продольный профиль длиной 120 см. Фиксируется к несущему профилю, шаг крепежа 60 см.
- Плиты потолочные размером 60х60 см.
- Подвесы со штангами и крюками. Несущая штанга подвеса крепится к потолку анкерами или дюбелями, а крюк фиксируется на несущем профиле. Чтобы отрегулировать высоту размещения подвеса, нужно воспользоваться зажимами – процедура выравнивания позволяет добиться горизонтальной ровности всей подвесной системы.
Совет! Если плиты изготавливаются из тяжелых материалов – древесины, зеркала, то нужно пользоваться подвесами с усилением.
- По периметру комната обшивается стеновым профилем с сечением в виде металлического уголка. Длина стенового профиля 300 см, установка строго горизонтально.
Совет! Чтобы закрепить стеновой профиль строго по горизонтали, лучше воспользоваться лазерным уровнем.
Кроме деталей каркаса, плит в комплект входят анкера, дюбели, саморезы. Выпускаются каркасные детали из металла и металлопластика. Для повышения антикоррозийных качеств металла профиль покрывается полимерной порошковой краской. Ширина полки профилей может быть 15 мм и 24 мм. Детали с узкой полкой можно использовать для потолков без встроенных осветительных приборов, широкая полка требуется при формировании систем с тяжелыми зеркальными или стеклянными плитами, встраивании светильников.
Подвесная система Армстронг Т-24. Чем отличаются подвесные системы Т-24 и Т-15 у производителей?

Рассмотри на примере потолочных систем Албес различие между ними, а так же области применения…
Существует несколько видов подвесных систем - Т-24, Т-15, реже встречается Т-35, а так же различные дизайнерские (типа Armstrong Silhouette или Албес STRUNA). Но у каждого производителя системы Т-15 и Т-24 делятся еще на несколько групп. Например, у Армстронга это - Trulok Javelin и Prelude, у Абеса - Norma, Euro, Click Prim и т.д. Если не брать во внимание возможность окраски в различные увета (что скажется на цене), то подвесные системы одного и тогоже цвета (как правило белого) тоже различаются в цене, хотя визуально врядли даже специалисты смогут отличить эти системы. Так в чем же отличие, и почему разные цены? Рассмотри на примере потолочных систем Албес. У них существуют следующие виды Т-хх подвесных систем:
Т-24 Click Prim - Видимая подвесная система Т-24 CLICK PRIM предназначена для монтажа панелей из стекла, керамики и панелей со звукоизоляционным слоем из гипса.
Т-24 Албес ЕВРО - За счет конструкции и применения коррозионностойких материалов Т-24 Албес ЕВРО возможно использовать для монтажа тяжёлых потолочных панелей из гипса, керамики, витражного стекла и зеркала.
Т-15 Prim - Профили подвесной системы Т-15 PRIM предназначены для монтажа тяжелых кассетных потолков размером 600х600 мм и 600х1200 мм, а также панелей со звукоизоляционным слоем.
Т-15 Албес - Наличие в каркасе профиля T-15/29 Албес длиной L=0.30 (мет.) повышает возможности подвесной системы в отношении монтажа кассет "Албес" самых распространенных форматов: 300х300 мм, 300х600 мм, 300х1200 мм, 600х600 мм, 600х1200 мм, 1200х1200 мм и позволяет по-новому взглянуть на стандартные приемы в оформлении потолков.
Т-24 Албес - Профили подвесной системы Т-24 Албес — универсальны для монтажа самых распространенных (популярных) кассетных потолков размером 600х600 мм и 600х1200 мм из минерального волокна и алюминия как отечественного, так и зарубежного производства.
Т-24 Norma - Новая система Т-24 Norma имеет замок, отличный от замка, использовавшегося ранее на профиле Universal и Албес. Изменение геометрии стыковочного отверстия и замковых соединений в новой системе Т-24 Norma позволило увеличить жесткость данного профиля и повысить его несущую способность.
Т-24 Эконом - Профили подвесной системы Т-24 Эконом — универсальны для монтажа самых распространенных (популярных) кассетных потолков из минерального волокна и алюминия как отечественного, так и зарубежного производства.