Комплект поставки потолка армстронг. Как устроен армстронг
Комплект поставки потолка армстронг. Как устроен армстронг
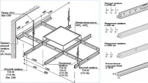
Устройство потолка типа армстронг ясно из рисунка. Обозначения на нем:

Устройство потолка армстронг
- Потолочная плита.
- Поперечный профиль длиной 600 мм.
- Несущий профиль длиной 3700 мм.
- Продольный профиль длиной 1200 мм.
- Подвес, где 5а – крючок; 5б – штанга.
- Периметральный (стеновой) профиль длиной 3000 мм.
- Крепежный узел в базовом потолке.
- Фрагмент потолочной плиты.
Пояснения к рисунку:
Размеры потолочных плит – 600х600 и 1200х600 мм. Последние почти полностью вышли из употребления – потолок из них получается недостаточно прочным.
Плиты выпускаются мягкие, минеральные и органические, и жесткие – металлические и стеклянные, зеркальные и с рисунком. Жесткие плиты тяжелы, поэтому профили и подвесы для них требуются специальные, усиленные; соответственно дорогие. Минеральные мягкие плиты также почти не применяются: в составе их – вредная минвата. Органические плиты изготавливаются из отходов переработки бумаги и безвредны. Мягкие плиты легко режутся монтажным ножом, твердые для обработки требуют специального инструмента; стеклянные – алмазного.
Профили – металлические окрашенные или металлопластиковые, с отверстиями для подвески. Ширина полки – 15 или 24 мм. Стеновой – Г-образный с отгибом или просто уголок; прочие – Т-образные. Соединяются профили по длине пружинными замками или отгибаемыми усиками. Все профили можно обрезать в размер со стороны, противоположной замку.
Подвес состоит из пары 6 мм металлических прутков, ровного и с крючком, соединенных листовой изогнутой пружиной с отверстиями – «бабочкой». Сжимая бабочку, прутки можно двигать, регулируя высоту подвеса, а отпущенная она фиксирует их намертво. Верхняя часть ровного прутка усиленного подвеса профилированная, для надежной фиксации в крепежном узле.
Крепежный узел – обычный дюбель под саморез или металлическая цанга. Последняя применяется для усиленного подвеса или при гладком ровном прутке. Такие подвесы требуются не только для жестких потолков, но и для мест с сосредоточенной нагрузкой: светильников, вентиляционных решеток и т.п.
Крепление потолка армстронг полностью обратимое и разборное: ровный пруток вбивают или завинчивают в крепежный узел без разборки подвеса, на крючок надевают профиль и, сжав бабочку, регулируют высоту по туго натянутому шнуру. Для доступа в межпотолочное пространство одну из плит приподнимают и сдвигают в сторону. Закрывают проем в обратном порядке.
Потолок армстронг под ключ. Устройство потолков Армстронг
Конструктивно система представляет собой каркас подвесного потолка Армстронг, который собирается из металлического профиля в форме ячеек размером 60х60 см и плит стабильной геометрической формы.
Плиты могут быть сделаны из разных материалов, в частности:
- листы металла с перфорацией или без нее;
- зеркало;
- стекло;
- дерево;
- пластик;
- органические или минеральные природные материалы, бумага.
На заметку! Гипсокартонные плиты отличаются малой влагостойкостью, изготовленные из минеральной ваты осыпаются, могут нанести вред здоровью человека, если волокна попадут в дыхательные пути.

Стоит подробнее рассмотреть профильную систему подвесной конструкции.
Для обустройства каркаса нужны следующие элементы:
- Т-образный несущий профиль длиной 370 см. Монтируется параллельно короткой стене. Если длина стены более 370 см, ламель наращивают специальными креплениями, если длина стены меньше, профиль подрезают.
- Т-образный поперечный профиль длиной 60 см.
- Т-образный продольный профиль длиной 120 см. Фиксируется к несущему профилю, шаг крепежа 60 см.
- Плиты потолочные размером 60х60 см.
- Подвесы со штангами и крюками. Несущая штанга подвеса крепится к потолку анкерами или дюбелями, а крюк фиксируется на несущем профиле. Чтобы отрегулировать высоту размещения подвеса, нужно воспользоваться зажимами – процедура выравнивания позволяет добиться горизонтальной ровности всей подвесной системы.
Совет! Если плиты изготавливаются из тяжелых материалов – древесины, зеркала, то нужно пользоваться подвесами с усилением.
- По периметру комната обшивается стеновым профилем с сечением в виде металлического уголка. Длина стенового профиля 300 см, установка строго горизонтально.
Совет! Чтобы закрепить стеновой профиль строго по горизонтали, лучше воспользоваться лазерным уровнем.
Кроме деталей каркаса, плит в комплект входят анкера, дюбели, саморезы. Выпускаются каркасные детали из металла и металлопластика. Для повышения антикоррозийных качеств металла профиль покрывается полимерной порошковой краской. Ширина полки профилей может быть 15 мм и 24 мм. Детали с узкой полкой можно использовать для потолков без встроенных осветительных приборов, широкая полка требуется при формировании систем с тяжелыми зеркальными или стеклянными плитами, встраивании светильников.
Потолок армстронг калькулятор. Онлайн калькулятор потолка Армстронг
Онлайн калькулятор потолка Армстронг предназначенный для точного расчёта нужной квадратуры подвесного потолка “Армстронг” (амстронг) и его комплектующих, расходных материалов: подвесов, реек, потолочной плитки. Калькулятор армстронга
Выбирая способ отделки потолка, сегодня многие останавливаются на потолках Armstrong. Это оправданный выбор. Плиточные подвесные потолки прочны и долговечны, имеют широкий ассортимент по дизайну, легки в монтаже, экологичны и недороги. Калькулятор потолка армстронг онлайн по площади – вам нужно знать площадь комнаты, остальное онлайн калькулятор сделает сам.
Перед началом монтажа любого потолочного покрытия нужно понимать, какое количество материалов может потребоваться. Расчет потолка армстронг калькулятор онлайн вэтом случаи просто необходим. Удобнее всего использовать в расчете потолка Армстронг и его комплектующих калькулятор онлайн. Он позволит не ошибиться в сложных вычислениях и быть уверенным, что количество купленных потолочных плиток будет достаточно для проведения работ.
Инструкция к калькулятору подвесного потолка Армстронг
- Введите длину и ширину вашего помещения, где планируется устанавливать подвесной потолок. Обратите внимание, что дробные значения необходимо вводить через точку , а не через запятую.
- Выберите необходимую плиту для подвесного потолка. Плиты рассчитываются с 10% запасом
- Выберите подвесную систему.
- Выберите длину подвеса – то есть на какую высоту от потолка Вы будете опускать потолок. Все подвесы регулируются, их максимальная длина указана в названии.
- Нажмите кнопку посчитать и Вы увидите таблицу с ценами за каждую составляющую подвесного потолка и итоговую стоимость на ваш объем.
Конечно, расчет Армстронга можно выполнить, прибегая к специалистам строительного магазина или нанятыми вами отделочников. Однако данная услуга не всегда предоставляется в гипермаркетах, отделочники могут ошибиться, да и проверить самостоятельно точность расчета никогда не будет лишним. Сегодня можно легко сделать предварительный расчет у себя дома. При этом вам не нужно прибегать к сложным таблицам расчета стоимости материалов. Если вы используете наш калькулятор онлайн для расчета потолка Армстронг, его комплектующих и монтажных приспособлений, то вам нужно знать всего два параметра: площадь вашего помещения и по возможности его периметр.
Необходимые детали подвесного потолка :
- Плиты потолочные минеральные (карты);
- Подвес для регулировки высоты конструкции;
- Поперечная планка (рейка) – 0,6 м.;
- Поперечная планка (рейка) – 1,2 м.;
- Основная несущая направляющая рейка – 3,7м.;
- Пристенный периметральный угол – 3 м.
Специально для вас был создан калькулятор подвесного потолка амстронг. Выполнив нехитрые манипуляции вы получите всю необходимую информацию. Чтобы узнать нужный результат, необходимо ввести значения площади и периметра потолка. Нажав кнопку рассчитать, вы получите искомую информацию.
Также калькулятор выдаст вам необходимое количество пристенных углов и реек, в том числе и несущих. Калькулятор очень прост и удобен в использовании. За считанные секунды он выдаст все необходимые параметры, что значительно упростит и сократит время на подготовку ремонта/
Инструкция к калькулятору подвесного потолка: Введите длину и ширину потолка. Нажмите кнопку «рассчитать».
Калькулятор подвесного потолка амстронг – отличное решение для тех, кто заботится о точности и не желает переплачивать за неиспользованный материал. При помощи данного инструмента вы сможете закупиться в том масштабе, который нужен именно вам.
Формулы расчета потолка Армстронг
Для того, чтобы рассчитать подвесной потолок, используем следующие формулы.
Если площадь потолка обозначить «S», число облицовочных плит будет 2, 78 * S.
- Длина направляющих: 0, 23 * S.
- Обрешетка состоит из поперечных и продольных частей с размером 1, 4 * S.
- Уголки рассчитываем: P/3, где P — периметр комнаты.
- Подвесы рассчитываются по формуле: 0, 7 * S.

Редко так получается, что вся площадь потолка разбивается на квадраты одинаковой величины. Многие производители на этот счет советуют обрезать декоративные плиты таким образом, чтобы оставалось примерно половина ширины. Но при должной сноровке лучше градиентно менять размеры плит. Это позволит избежать заметных переходов и даже сделать разницу в размерах практически незаметной.
Если так получилось, что пришлось делать обрезку панелей, то обрезанный ряд нужно располагать вдоль противоположной от двери стены.
Периметральный профиль может крепиться к стене с шагом от 0,3 до 0,6 м. Это зависит от нагрузки со стороны каркаса, осветительных приборов и собственно плит.
Несущие профили относительно коротких стен нужно стараться располагать параллельно. Такой подход обусловлен сокращением количества стыков несущих профилей, что в целом положительно сказывается на прочности каркаса.
Источник: https://armstrong-dlya-potolkov.aystroika.info/stati/potolok-armstrong-gorit-ili-net-material